R 4 200 000
calculate bond costs

266 m² Industrial space in Parklands

1 titan park 2, 13 hubble
266 m²

266 SQM Industrial Property FOR SALE In Rivergate

FOR SALE: 266m2 Modern Warehouses | Titan Park 2, Rivergate

A brand-new sectional title industrial development in the secure Pegasus Park enclave Titan Park 2 offers a rare opportunity to own high-quality factory units in one of Rivergates most sought-after locations.

Property Highlights:

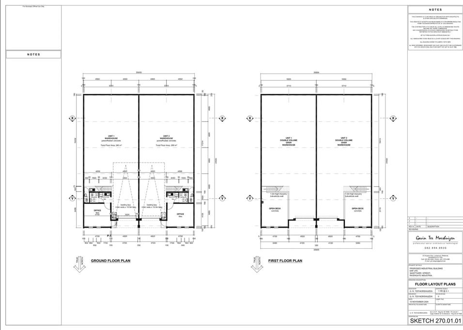
Unit Size: 266m2 total per unit

Warehouse (Double Volume): 202m2

Mezzanine Floor: 32m2

Ground Floor Office: 22m2

Kitchen & Ablutions: 10m2

Flooring: Power-floated concrete in warehouse, tiled office floors

Power: Solar power installation ready

Parking: 4 dedicated bays per unit + visitor parking

Security: Located within Pegasus Park''s secure business precinct

For further information required on these properties or the area, please feel free to contact us.

Property details

  • Listing number T5205546
  • Property type Industrial
  • Listing date 26 Aug 2025
  • Floor size 266 m²

Photo gallery