Under Offer

1 Bedroom Townhouse in Flora Park

1 1 2 132 m² 70 m²

UNIQUE LIVING EXPERIENCE

UNIQUE LIVING EXPERIENCE

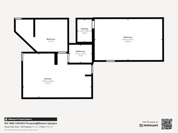
This offers a unique living experience with its blend of industrial and residential features. The single-story layout comprises two bedrooms, one bathroom, a hallway, and a kitchen.

The home''s standout feature is its industrial-style ceiling, visible in several rooms. Corrugated metal sheets supported by wooden beams create an intriguing visual element and add height to the space. Tiled floors throughout provide durability and easy maintenance.

The kitchen is a bright focal point, featuring vibrant yellow cabinetry with a stainless steel countertop and sink. Wooden shelving above adds warmth and storage. The bathroom, while compact, includes essential fixtures and a curtained bathing area.

An unexpected bonus is the garage or workshop space, complete with a large roll-up door, providing ample room for projects or vehicle storage. Additionally, an outdoor patio area offers potential for al fresco dining or relaxation.

Large windows in the bedrooms allow natural light to flood the spaces, while ceiling fans help maintain comfortable temperatures. Built-in closets in the bedrooms provide valuable storage solutions.

This property presents an opportunity for those seeking a unique living space with industrial touches and practical features, all within a compact 66.0 m footprint.

Property details

  • Listing number T5186940
  • Property type Townhouse
  • Listing date 12 Aug 2025
  • Land size 132 m²
  • Floor size 70 m²
  • Rates and taxes R 950

Property features

  • Bedrooms 1
  • Bathrooms 1
  • Lounges 1
  • Garage parking 1
  • Open parking 1
  • Storeys 1
  • Pet friendly
  • Built in cupboards
  • Entrance hall
  • Kitchen
  • Garden
  • Paving

Photo gallery

3D virtual tour