R 5 750 000
calculate bond costs

3 Bedroom House in Diep River

22 mile end road
3 1 2 1 592 m² 134 m²

Prime Development Opportunity with Subdivision Approval. *Price includes VAT so no transfer duty*

Prime Development Opportunity with Subdivision approval.

Asking price: R 5 750 000 including VAT (R 5 000 000 plus VAT)

*No Transfer Duty Payable*

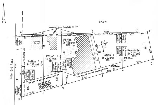
Perfectly positioned above the railway line in Diep River, this 1,592m property offers approved subdivision into five separate erven, making it an exceptional opportunity to unlock the sites full potential.

The existing 3 bed home, situated on Portion 2 (456m), is in need of renovation, ideal for those wanting to restore and retain its character while capitalising on the surrounding development potential.

With approved subdivision already in place, the property offers excellent scope for a residential development comprising multiple freehold homes, catering to the strong buyer demand in this sought-after pocket of the Southern Suburbs.

Conveniently located close to schools, shopping centres, transport routes, and within easy reach of the Constantia Valley and surrounding suburbs this property offers a great opportunity.

Dont miss this rare opportunity to develop in one of the Southern Suburbs most accessible and up-and-coming areas.

Total Erf size: 1592m2

Approved Subdivision Sizes:

Portion 1 = 262m2

Portion 2 = 456m2 (existing house)

Portion 3 = 277m2

Portion 4 = 350m2

Remainder Portion = 247m2

Property details

  • Listing number T5280428
  • Property type House
  • Listing date 25 Oct 2025
  • Land size 1 592 m²
  • Floor size 134 m²
  • Rates and taxes R 2 070

Property features

  • Bedrooms 3
  • Bathrooms 1
  • Garage parking 2
  • Access gate
  • Fenced
  • Garden

Photo gallery