R 4 074 536
calculate bond costs

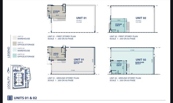
355 m² Industrial space in Bartlett

355 m²

New Development

Office 52 m2

Storage 53 m2

235 m2 Warehouse

- Newly build warehouse (occupation end 2026)

- Centrally located

- Close to R12

- Close to OR Tambo International airport

- Easy access to and from major arterials

- Easy access to freeways

- Established industrial node

- Fibre cabling available

- Fibre Connectivity

- Good exposure

- Good height in warehouse

- Good security

- Large roller door access

- Offices and storeroom

- Prime industrial park

- Secure palisade fence around property

- Secure park

- exclusive use parking

Price excludes vat

All areas are approximate and subject to final survey

Options are available to combine units

Allocated parking

- - - Photos are general in the park and may not be representative of the actual unit

Osher specializes in Industrial and Commercial properties with an emphasis on the greater Johannesburg area. We collaborate with our network in all parts of South Africa to find solutions for our clients. Our services include all manner of property transactions including:

LEASING: more space or less

SALES: investment or owner occupier

DEVELOPMENTS: build to suit for ownership or rental

TOWNSHIP ESTABLISHMENT: bringing new zoned land to market

LEASEBACK: unlock capital from your property for your business

FINANCE: structuring property deals

AUCTIONS: efficient sales with commission paid by buyer.

Property details

  • Listing number T5289379
  • Property type Industrial
  • Listing date 3 Nov 2025
  • Floor size 355 m²

Photo gallery