R 3 995 000
calculate bond costs

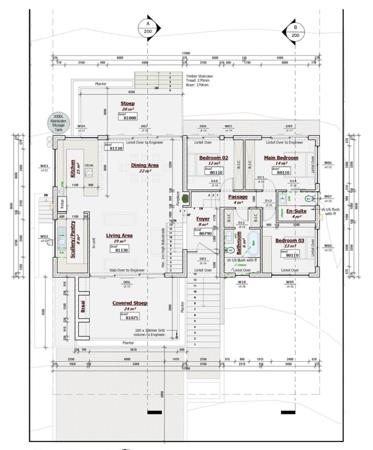
3 Bedroom House in Wavecrest

3 2.5 2 600 m² 253 m²

Modern Architectural Gem with Seamless Indoor-Outdoor Living currently under construction

Step into sophistication with this beautifully designed modern home, where contemporary flair meets everyday comfort. The open-plan living space flows effortlessly, anchored by a cozy fireplace and enhanced by expansive sliding doors that lead out to a covered patioaperfect for entertaining, complete with a built-in braai.

The sleek, stylish kitchen is a chefas delight, featuring clean lines and quality finishes, while a separate scullery and laundry area keep the essentials tucked away. Exposed roof trusses add an elegant touch of architectural detail, creating a sense of volume and charm throughout the home.

Boasting 3 spacious bedrooms and 2 elegant bathrooms, this residence is tailored for both relaxation and convenience. The extra-large double garage offers ample space for vehicles and storage, and practical features like 2 water tanks, a gas geyser, and an outdoor toilet add efficiency to modern living.

This is a home that blends functionality with flairacrafted for those who appreciate thoughtful design and easy living.

Contact me today!

Property details

  • Listing number T5119487
  • Property type House
  • Listing date 18 Jun 2025
  • Land size 600 m²
  • Floor size 253 m²
  • Rates and taxes R 1 250

Property features

  • Bedrooms 3
  • Bathrooms 2.5
  • Garage parking 2
  • Pet friendly

Photo gallery