R 4 699 000
calculate bond costs

4 Bedroom House in Heritage Hill

4 4 2 433 m² 262 m²

4 BEDROOM BUILDING PACKAGE IN HERITAGE HILL ESTATE

NO TRANSFER DUTY. PLOT AND PLAN: New Development

The new Heritage Hill Estate extension was once just a dream but now its ready to launch!

This aspiration is succeeded by proactive planning with an accredited developer and designed by an architect. Resulting in the new expansion of the already picturesque lifestyle village.

Bring your dream home to life With limited homes available now is the time to make your move. Dont miss outcall us today

This CONCEPT plan (of a 262 m2 home on a 433 m2 stand) gives you a glimpse into your potential new home:

DOUBLE STOREY Home:

Ground Floor: This modern double-storey home features an open-plan kitchen with a separate scullery, flowing into spacious living and dining areas that open to a covered patio and garden.

The ground floor includes a guest bedroom and bathroom. Direct access to a double garage, and a staff bathroom

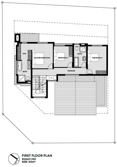
First Floor: Upstairs features 3 generously sized bedrooms, 2 bathrooms (including a luxurious en-suite), all finished with premium touches for a perfect blend of style and practicality.

Stand Sizes: From 408 m2 to 558 m2

Stand Value: From R1,250,000

Property Sizes: From 200 m2 and up

Allow Leapfrog Property to guide you on this journey to your new Home.

Your dream awaits! These BUILDING PACKAGES include TRANSFER DUTY (VAT included) and you are PART of the JOURNEY!

1. SELECT your suitable STAND from the list of available stands

2. Determine your BUDGET for your building plan with the construction and development team

3. Sign OFFER TO PURCHASE and BUILDING CONTRACT and do payment of the DEPOSIT within 14(fourteen days)

4. MEET with one of the professional ARCHITECHS

5. HAVE YOUR DREAM HOME BUILT

HERITAGE HILL ESTATE:

The beautiful and intimate Heritage Hill Estate offers secure farm style living.

The streets portray laid back activities, care free strolls in the many parks and an unusual close to extinct neighbourly flair.

Filled with various break-away areas, including a breath-taking Rose Garden, Lemon Orchard, parks, playgrounds, ponds, walk/run/mountain bike routes within the boundaries of a top-notch Security Estate.

The Estates Clubhouse centre includes multiple spacious function areas, built-in braais, outside braai areas, a tennis court, 2 swimming pools and a kiddies sandpit. The Clubhouse can be booked by residents for functions.

It is conveniently situated close to all major highways, multiple shopping areas, various schools and Midstream Medi-Clinic.

Come and experience this exceptional lifestyle today.

Property details

  • Listing number T4889129
  • Property type House
  • Listing date 2 Dec 2024
  • Land size 433 m²
  • Floor size 262 m²

Property features

  • Bedrooms 4
  • Bathrooms 4
  • En-suite 1
  • Lounges 3
  • Dining areas 1
  • Garage parking 2
  • Storeys 2
  • Pet friendly
  • Access gate
  • Built in cupboards
  • Club house
  • Patio
  • Entrance hall
  • Kitchen
  • Garden
  • Scullery
  • Electric fencing
  • Paving
  • Guest toilet
  • Built In braai

Photo gallery