New
R 7 724 250
calculate bond costs

4 Bedroom House in Heritage Hill

4 4 2 665 m² 365 m²

Building Package in Heritage Hill 4 Bedroom House

Let this building package come to life with your unique preferences:

Plans consists of a 4 Bedroom, 4 Bathroom Double Story house.

Located in the historic Heritage Hill Estate.

A building package means that you have the freedom to choose your interior finishes.

Direct from the developer, therefore only attorney fees are applicable and no transfer duties payable

2 Options on this 655m2 stand.

Option One: Build for R 6 329 250.00 275 sqaure meters

Option Two Build for R 7 724 250.00 365 sqaure meters

Prime Features:

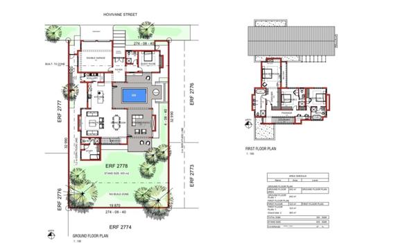
The Ground floor plan includes:

A foyer leading to the guest bedroom on the left with a separate full guest bathroom Shower, toilet, single vanity

To the right of the foyer is the door to the double garage

Down the passage: Open plan living, dining and kitchen with a separate scullery opening up to an undercover Patio for entertaining and relaxing right next to the pool and boma.

Plans have included a generous garden.

First Floor:

The staircase leads up to a passage that has a study nook.

3 bedrooms: Luxurious main bedroom with a full en-suite bathroom double vanity, bath, shower and toilet.

The main bedroom also has its own balcony.

The second and 3rd bedroom share a full bathroom Shower, toilet and single vanity

Extra''s:

Garden

Boma

Swimming Pool

Staff accomadation with an en-suite bathroom shower, toilet, basin

Double garage

Contact me today to discuss this property.

Heritage Hill Security Estate is situated in a niche part of Centurion. The estate is a farm-styled estate that provides safety, 247 security, family orientated lifestylehealthy living amenities and a feeling of belonging. A lifestyle estate, built around community. Heritage Hill is more than just a secure estate, it''s a lifestyle offering a range of amenities, including parks, running trails, and community events.

The estate is close to major highways, with easy access to the business hubs of Sandton and Pretoria.

Close to highways, excellent schools and shopping Centres.

Property details

  • Listing number T5440742
  • Property type House
  • Listing date 28 Mar 2026
  • Land size 665 m²
  • Floor size 365 m²

Property features

  • Bedrooms 4
  • Bathrooms 4
  • Lounges 1
  • Dining areas 1
  • Garage parking 2
  • Pet friendly
  • Laundry
  • Patio
  • Security post
  • Staff quarters
  • Garden

Photo gallery