On Show
R 6 638 600
calculate bond costs

4 Bedroom House in Heritage Hill

4 4 2 546 m² 315 m²

Elegant 4-Bedroom Home with Study, Private Balconies and BOMA Entertainment Area

LPM26-043.3

PLOT & PLAN | BUILDING PACKAGE

Key Features

4 bedrooms, all en-suite, including a guest bedroom on the ground floor

Private main-bedroom balcony offering a peaceful retreat

Upstairs study, ideal for work-from-home or homework space

Exceptional outdoor entertainment area with pool, BOMA with firepit and built-in seating

Open-plan living area with built-in braai and uninterrupted garden views .

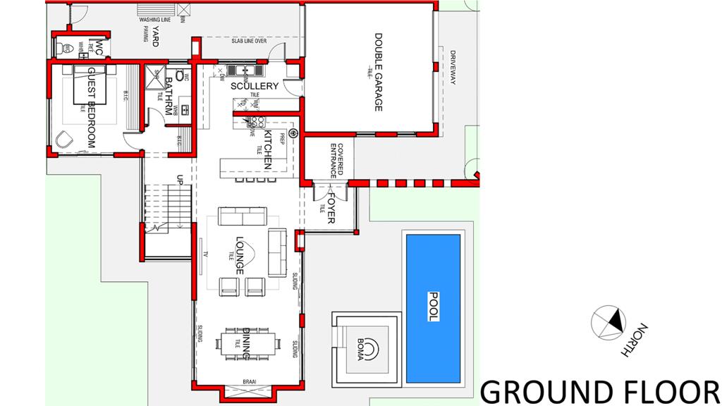
The home offers excellent practicality, with the double garage providing direct internal access into the scullery, ensuring convenient entry when returning home with groceries or daily essentials.

Entering through the covered porch, the foyer leads into the main living areas positioned to the right. The open-plan kitchen, lounge, and dining room create a seamless flow, with a built-in braai enhancing the entertainment offering. The entire living area enjoys views of the pool, BOMA with firepit and built-in seating, and the garden, creating a strong indoor-outdoor lifestyle connection.

The kitchen is designed for both style and functionality, featuring a separate scullery with access to the kitchen yard and outside toilet, keeping service areas well separated from the main livin space.

Also on the ground floor is a guest bedroom with a separate full bathroom, ideally positioned for visitors. A linen cupboard in the passage near the guest bedroom adds practical storage space.

Upstairs, the staircase leads to the family area landing, where a study and additional linen cupboard provide convenience and flexibility. The main bedroom is positioned nearby and features a walk-in closet, full en-suite bathroom, and a private balcony.

To the right of the landing are bedrooms two and three, both offering en-suite bathrooms, ensuring comfort and privacy for family members.

This well-designed home combines modern comfort with functional living spaces and standout entertainment features. With all bedrooms en-suite, a dedicated study, and a strong emphasis on indoor-outdoor living through the pool and BOMA area, this property offers a balanced family lifestyle within a secure and sought-after estate environment.

Building Package Information

Concept plans available, or design with an architect

Choice of single- or double-storey homes

Building sizes from 200 m2

No transfer duty

Directly from the developer

Choose your own finishes.

Estate amenities include a clubhouse, private open spaces, walking trails, recreational facilities, and convenient access to major routes, schools, shopping, and healthcare.

Located in the sought-after Heritage Hill Estate, which offers more than just an address. Surrounded by lush greenery and a vibrant community, enjoy peace of mind with state-of-the-art security. With amenities like parks, running trails, and community events. Heritage Hill Estate is pet-friendly, allowing two dogs, two cats, or a combination of one dog and one cat. Conveniently located near Midstream shopping centres and schools. Heritage Hill is a lifestyle choice!

On Show

  • Sat 23 May 09:30 - 17:30
None of these times suit?

Property details

  • Listing number T5446168
  • Property type House
  • Listing date 2 Apr 2026
  • Land size 546 m²
  • Floor size 315 m²
  • Rates and taxes R 6 239
  • Levies R 2 515

Property features

  • Bedrooms 4
  • Bathrooms 4
  • Lounges 1
  • Dining areas 1
  • Garage parking 2
  • Pet friendly
  • Balcony
  • Laundry
  • Pool
  • Security post
  • Study
  • Garden

Photo gallery