R 3 350 000
calculate bond costs

3 Bedroom House in Raslouw

3 3 4 400 m² 225.5 m²

Brand new full title home built to your liking in the established and popular Du Vin Estate

Design your ideal home, perfectly suited to your taste!

Within the estate''s architectural guidelines, you have the freedom to create a residence that caters to your specific requirements.

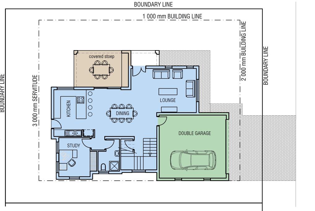
Select from a range of floor plans, or tailor one to align with your vision. For example, this option showcases a generous 3-bedroom home featuring a study on the ground floor and three bathroomstwo located upstairs and one adjacent to the study. The versatile downstairs study can serve as a home office, a fourth bedroom, or staff quarters. This particular design starts at R3,140,500, with different 4-bedroom options available beginning at R2,860,000.

Contact Marius today for more information!

Please note that the images of the completed home are for illustrative purposes only, representing existing houses within the estate. The building package for sale has yet to be constructed.

Property details

  • Listing number T4889287
  • Property type House
  • Listing date 3 Dec 2024
  • Land size 400 m²
  • Floor size 225.5 m²

Property features

  • Bedrooms 3
  • Bathrooms 3
  • Lounges 1
  • Dining areas 1
  • Garage parking 2
  • Open parking 2
  • Pet friendly
  • Patio
  • Study

Photo gallery