R 4 470 000
calculate bond costs

3 Bedroom House in Clayville

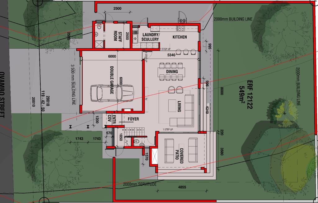
3 2.5 2 549 m² 235 m²

3 BEDROOM FAMILY HOME FOR SALE FOUNTAINBROOK ESTATE!!

**BUILDING PACKAGE**

** No Transfer Duty **

This stunning modern home is situated in the newly developed Fountainbrook Estate, adjacent to the prestigious Midstream Estates! This home could feature the following upstairs: Large main bedroom with a full en suite bathroom, as well as a spacious walk in wardrobe. Also upstairs could be 2 bedrooms with one full bathroom. Downstairs you will find open plan living and dining areas with a modern kitchen and scullery. Outside you could find your entertainment area with a built in braai, overlooking your private garden. This home will also feature double garages, staff quarters and a guest cloakroom.

Experience the pinnacle of modern living in Fountainbrook Estate with the promise of a blend of elegance and functionality. Make the call today to arrange a meeting with the developer and agent.

INFOGLOBE CENTURION (PTY) LTD trading as RE/MAX Infoglobe (Midstream) operates in terms of a franchise agreement with RE/MAX of Southern Africa.

Property details

  • Listing number T5102918
  • Property type House
  • Listing date 4 Jun 2025
  • Land size 549 m²
  • Floor size 235 m²
  • Rates and taxes R 3 400
  • Levies R 1 950

Property features

  • Bedrooms 3
  • Bathrooms 2.5
  • En-suite 1
  • Lounges 1
  • Dining areas 1
  • Garage parking 2
  • Pet friendly
  • Access gate
  • Balcony
  • Club house
  • Patio
  • Security post
  • Staff quarters
  • Entrance hall
  • Kitchen
  • Garden
  • Electric fencing
  • Family TV room
  • Paving
  • Guest toilet
  • Built In braai

Photo gallery