R 6 790 000
calculate bond costs

5 Bedroom House in Clayville

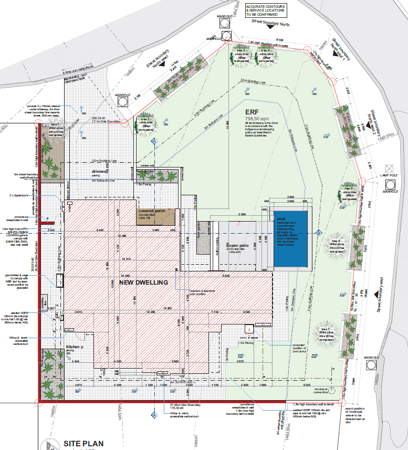
5 4 2 797 m² 342 m²

Newly Built Home on a Corner Stand No Transfer Duty!

This brand-new double-storey home is being developed on a prime corner stand in the prestigious Fountainbrook Estate. A modern design paired with quality finishes and no transfer duties payable makes this the ideal investment for families looking for space, style, and value.

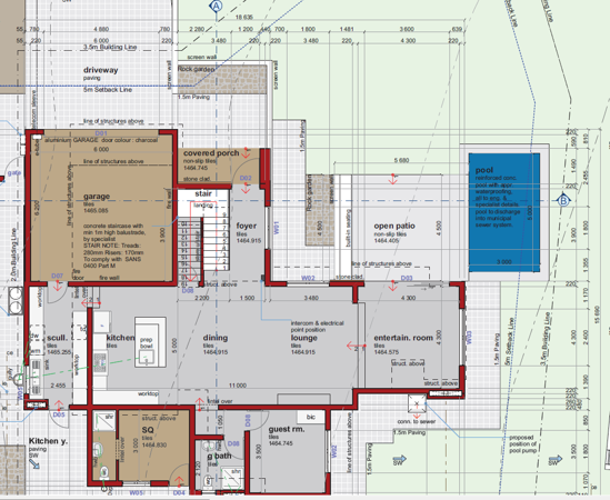
Ground Floor Features:

- Two automated garages with direct access

- Spacious open-plan layout connecting the kitchen, dining, and lounge areas

- Stylish kitchen with ample workspace and a separate scullery

- Dedicated entertainment area flowing onto an open patio and sparkling swimming pool perfect for indoor-outdoor living

- Guest bedroom and separate guest bathroom ideal for overnight visitors or a private study

- Full staff accommodation for added convenience

Upstairs Living:

- Cozy PJ lounge for relaxed family time

- Two family bedrooms sharing a full bathroom

- One family bedroom with a private en-suite bathroom

- Luxurious main suite featuring a walk-in closet, full en-suite bathroom, and private balcony

With its ideal location, elegant design, and no transfer duty, this home offers unmatched value in one of the area''s most sought-after estates. Contact us today to find out how you can make this stunning property your own.

Fountainbrook Estate A Lifestyle of Convenience & Security

Enjoy peace of mind with 24-hour manned security and access-controlled gates. The estate offers a clubhouse, communal pool, and braai areas for effortless weekend entertaining. For the adventurous, a pedestrian bridge leads to The Red Barn a destination for farm-style markets, off-road cycling trails, painting, and family fun. Plus, with a brand-new shopping centre just moments away, your daily essentials are always within easy reach.

Rates & Levies - Estimated

Pets - 2 Dogs or 2 Cats Based on HOA Approval - Dogs must be 30cm in height on maturity)

Property details

  • Listing number T5164264
  • Property type House
  • Listing date 24 Jul 2025
  • Land size 797 m²
  • Floor size 342 m²
  • Rates and taxes R 5 999
  • Levies R 1 950

Property features

  • Bedrooms 5
  • Bathrooms 4
  • Lounges 2
  • Dining areas 1
  • Garage parking 2
  • Pet friendly
  • Balcony
  • Laundry
  • Patio
  • Pool
  • Security post
  • Staff quarters

Photo gallery