R 4 950 000
calculate bond costs

4 Bedroom House in Homes Haven

4 4 2 405 m² 335 m²

Be part of building your 4 bedroom home with a stunning view

No Transfer Duty Save R350,000 and Invest in Your Future

Welcome Home Where Family Dreams Come to Life

Be part of a beautiful journey building your very own 4-bedroom family home in the heart of Homes Haven. Nestled in the sought-after Cradle Ridge Estate, this secure, upmarket community offers breathtaking views of the Cradle of Humankind and a peaceful atmosphere to raise your family.

This thoughtfully designed home brings warmth, light, and love into every room. Large windows flood the space with natural sunlight, while the open-plan layout encourages connection and flow throughout your living areas. Its not just a house its a place where memories are made.

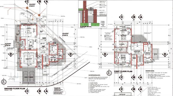
Ground Floor:

Enjoy spacious and welcoming open-plan living areas, perfect for family gatherings and cozy nights in.

The modern kitchen is a chefs delight with granite tops, a gas stove, electric oven, and a scullery all designed with family meals and shared moments in mind.

A guest bedroom with its own en-suite provides comfort for visiting loved ones.

Step outside to a covered patio and optional splash pool, ideal for summer braais and kids playtime.

A neat, manageable garden surrounds the home, giving your family space to grow and play.

Double automated garages keep your vehicles safe and sound.

First Floor:

Retreat to your luxurious main bedroom featuring a walk-in closet, stylish en-suite bathroom, and your own private lounge area

Two additional spacious bedrooms, each with built-in cupboards and their own en-suite bathrooms, offer comfort and privacy for every family member.

The home comes fibre-ready with pre-paid water and electricity modern convenience for todays family lifestyle.

Family-Friendly Estate Features:

Safe play areas, a mini soccer field, jungle gyms, a BMX track, communal braai spots, and a peaceful water feature everything kids need to thrive and parents need to relax.

Nearby Amenities:

Close to top schools like Curro and The King''s School, Silverstar Casino, Cradlestone Mall, Pinehaven Hospital, and major routes including the N14 and Lanseria Airport everything you need is just a stones throw away.

**Don''t miss out on this opportunity to build a warm, welcoming space your family will cherish

Property details

  • Listing number T5045216
  • Property type House
  • Listing date 15 Apr 2025
  • Land size 405 m²
  • Floor size 335 m²
  • Rates and taxes R 2 000
  • Levies R 1 660

Property features

  • Bedrooms 4
  • Bathrooms 4
  • En-suite 1
  • Dining areas 1
  • Garage parking 2
  • Storeys 2
  • Built in cupboards
  • Patio
  • Security post
  • Walk in closet
  • Kitchen
  • Garden
  • Scullery
  • Family TV room
  • Paving
  • Built In braai

Photo gallery