R 70 000 000
calculate bond costs

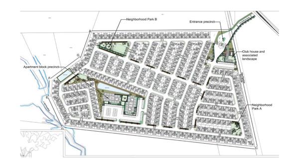
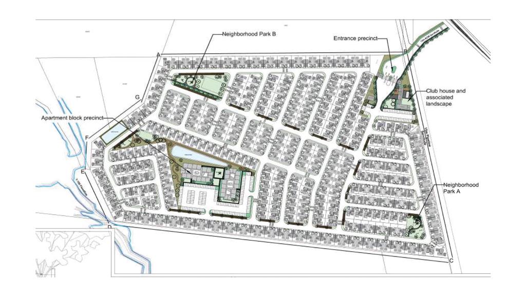
13 ha Land available in Klein Nederburg

13 ha

This beautiful piece of land is just outside of Paarl. It will consist of 371 homes and 96 apartments, all of which will have breathtaking views of the surrounding mountains.

Zoning, subdivision approval and final service level approval have been finalized, so the new owner can start with the marketing and selling process. Services still need to be implemented.

The estate will have walking paths, clubhouse and play parks for children. The security is state of the art with electric fencing, cctv cameras and 24 hour security.

All environmental studies have been completed.

Price excludes VAT.

Property details

  • Listing number T5121842
  • Property type Residential Land
  • Listing date 19 Jun 2025
  • Land size 13 ha

Photo gallery