R 220 000 000
calculate bond costs

33 ha Land available in Paarl

33 ha

DEVELOPMENT FOR SALE IN PAARL!!

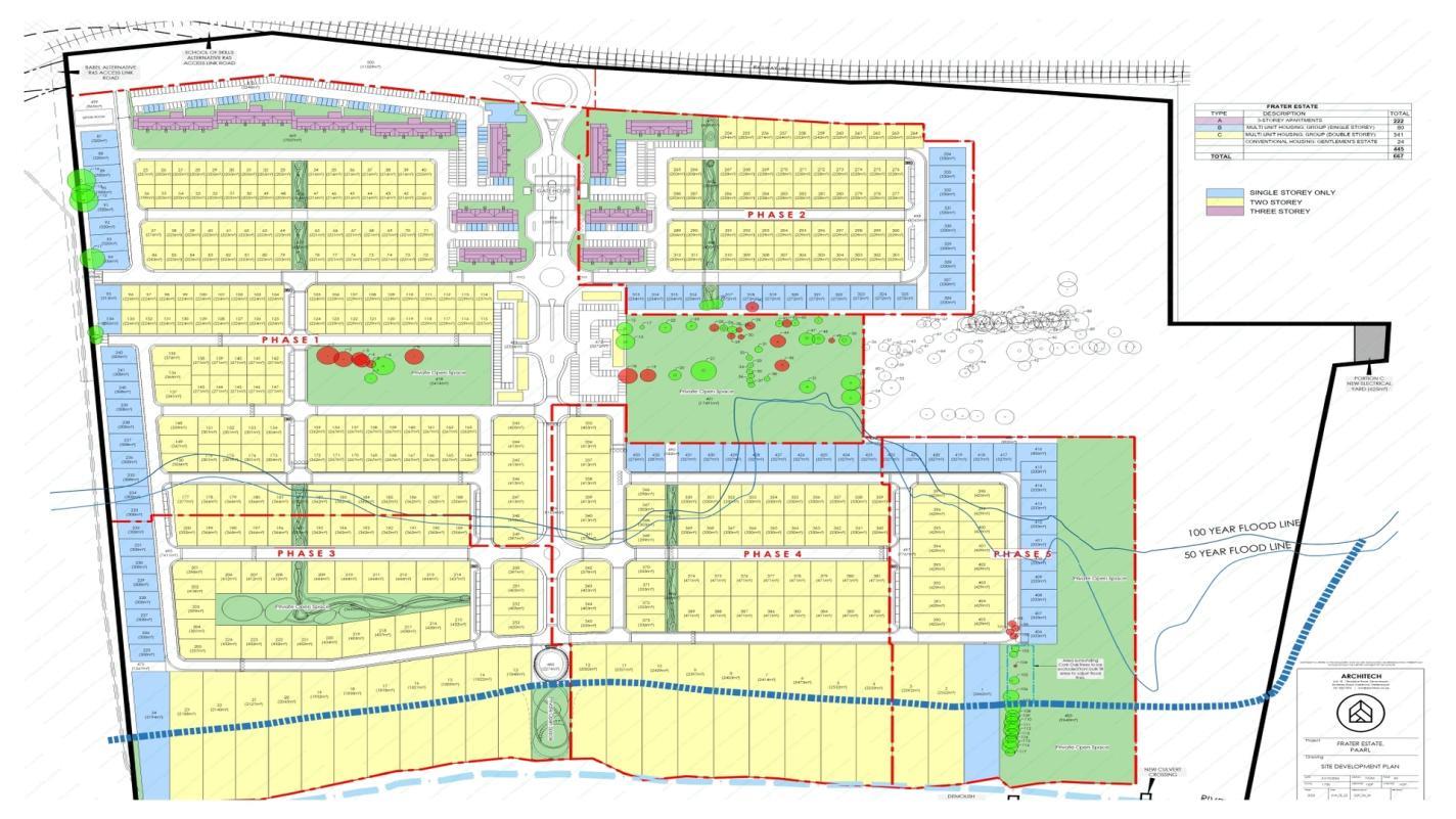
Frater Estate, a visionary residential development site offering 667 premium housing opportunities in the sought-after Cape Winelands. This expansive property is poised to become a premier lifestyle estate, complete with a state-of-the-art gym, elegant clubhouse, and dedicated commercial office space for modern convenience and community vibrancy. Nestled in Southern Paarl, Frater Estate boasts stunning mountain views of the iconic Paarl Rock, Simonsberg, and Drakenstein ranges. It enjoys an enviable position, almost bordering the prestigious Boschenmeer Golf Estate home to the renowned 27-hole Paarl Golf Club and the award-winning Pearl Valley Golf Estate featuring a Jack Nicklaus Signature Course, consistently ranked among South Africa''s top courses. It is also conveniently situated next to the world-famous Val de Vie Estate celebrated as one of Africa''s most secure luxury lifestyle estates, with polo fields, world-class wellness facilities, and international acclaim. This rare location places future residents at the epicenter of Paarl''s thriving golf, wine, and leisure scene, offering unparalleled access to elite amenities while promising strong capital appreciation in one of the Cape Winelands'' most desirable corridors.

Property details

  • Listing number T5387455
  • Property type Residential Land
  • Listing date 12 Feb 2026
  • Land size 33 ha

Photo gallery