R 6 850 000
calculate bond costs

1 104 m² Land available in Baronetcy Estate

1 104 m²

Unsurpassed Views to Build Your Dream Home

Vacant land set in a prime position of the luxury Baronetcy Estate, with unsurpassed views of Cape Town.

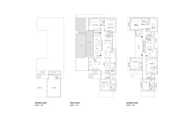
Bordering on the magnificent Tygerberg Nature Reserve. This prime property offers you the unique Opportunity to build your dream home. Our plan is the vision, you may adjust according to your perfect home. Please note these plans have not been approved by Council and are an indication of the endless possibilities to be the King on the Hill.

Call us today for an exclusive viewing.

Property details

  • Listing number T4243288
  • Property type Residential Land
  • Listing date 7 Jul 2023
  • Land size 1 104 m²
  • Rates and taxes R 2 067

Photo gallery