R 2 595 000
calculate bond costs

351 m² Land available in Britannia Bay

351 m²

Modern Coastal Living: Proposed 3-Bed Home in Britannia Bay Plot and Plan

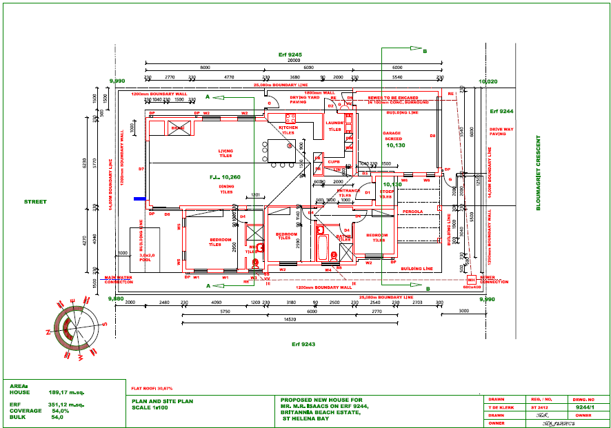
This proposed modern residence offers an exceptional opportunity for coastal living in Britannia Bay, St Helena Bay. Designed with a contemporary aesthetic, the home features plastered and painted finishes, a durable tiled roof, and a clean, inviting frontage. Its thoughtful layout is ideal for a small family or as a tranquil vacation retreat, promising a blend of comfort and style within a compact 351 sqm erf.

Step inside to discover an open-plan living area, seamlessly integrating daily life. The interior boasts tiled flooring throughout, ensuring a sleek and low-maintenance environment. A dedicated laundry room adds to the home''s practicality, catering to modern living needs. The residence comprises three comfortable bedrooms and two well-appointed bathrooms, providing ample space for relaxation and privacy.

Outdoor living is a highlight, with large folding doors on the North elevation creating an excellent indoor-outdoor connection. This leads to a shaded pergola area and a small 3x2m swimming pool, perfect for enjoying the South African sunshine and entertaining. An attached garage provides convenient parking and additional storage. Boundary walls enhance privacy and security, creating a secluded haven.

Embracing sustainability, the home incorporates solar panels into its roof plan, contributing to energy efficiency. The comprehensive electrical layout includes multiple plugs, internet, and TV points in various rooms, alongside safety features like dedicated geyser and stove isolators.

Britannia Bay is a sought-after coastal destination in St Helena Bay, known for its tranquil atmosphere and proximity to the ocean, offering a relaxed lifestyle.

Key Features:

* Proposed Modern 3-Bedroom, 2-Bathroom Home

* Open-Plan Living Area with Tiled Flooring

* Integrated Solar Panels for Energy Efficiency

* Small Swimming Pool and Shaded Pergola

* Attached Garage and Dedicated Laundry Room

* Modern Architectural Design with Tiled Roof

* Comprehensive Electrical Layout

* Boundary Walls for Privacy and Security

* Coastal Location in Britannia Bay

366 DAYS PROPERTY INVESTMENTS CC trading as RE/MAX 1st Realty (St Helena Bay) operates in terms of a franchise agreement with RE/MAX of Southern Africa.

Property details

  • Listing number T5302437
  • Property type Residential Land
  • Listing date 13 Nov 2025
  • Land size 351 m²

Photo gallery