R 10 800 000
calculate bond costs

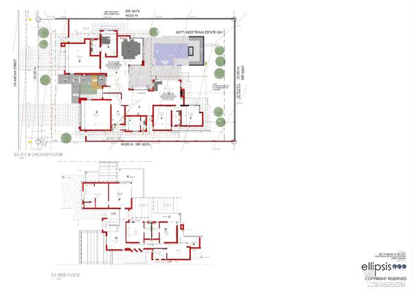
5 Bedroom House in Midstream Estate

5 6 8 1 000 m² 558 m²

5 Bedroom Home for Sale Midstream Heights

Experience the freedom to design your dream lifestyle with this modern 5-bedroom building package in Midstream Heights. Offering contemporary architecture and premium finishes, this home is sold direct from a reputable developer, meaning no transfer duties and the ability to customise elements to suit your familys needs. Incredibly positioned within the sought-after Midstream Estates, youll enjoy the best of estate living with schools, medical facilities, shopping centres, and leisure amenities all within easy reach.

The double-volume entrance creates an immediate sense of space, leading into open-plan living areas that flow effortlessly to the outdoors. A chefs kitchen with butlers kitchen and scullery forms the heart of the home, while entertainment spaces include a cinema room, covered patio with braai, pool, and bomaideal for both family gatherings and hosting friends. A guest suite, private study, and staff accommodation complete the ground floor, supported by four garages and smart practical features like automated irrigation.

Upstairs, four ensuite bedrooms and a PJ lounge offer comfort and privacy for the whole family. The main suite stands out with a walk-in dressing room, full bathroom, and balcony, while the flexible building package allows you to influence design details and finishes along the way. Midstreams renowned security and community lifestyle make this more than just a houseits a space you can truly call your own. Secure your consultation today and start building your vision.

REDLEX 512 (PTY) LTD trading as RE/MAX Property Merchants (Mooikloof) operates in terms of a franchise agreement with RE/MAX of Southern Africa.

Property details

  • Listing number T5235012
  • Property type House
  • Listing date 17 Sep 2025
  • Land size 1 000 m²
  • Floor size 558 m²
  • Rates and taxes R 6 400
  • Levies R 2 300

Property features

  • Bedrooms 5
  • Bathrooms 6
  • En-suite 5
  • Lounges 1.5
  • Dining areas 1
  • Garage parking 4
  • Open parking 4
  • Pet friendly
  • Access gate
  • Balcony
  • Club house
  • Deck
  • Fenced
  • Laundry
  • Patio
  • Pool
  • Scenic view
  • Security post
  • Storage
  • Study
  • Entrance hall
  • Kitchen
  • Garden
  • Pantry
  • Family TV room
  • Paving
  • Guest toilet
  • Built In braai

Photo gallery