R 3 450 000
calculate bond costs

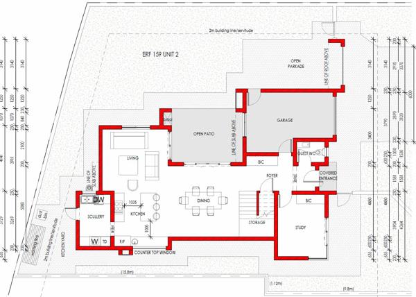
3 Bedroom House in Derdepoort

3 3 2 445 m²

Off-Plan 3 Bedroom Building package

Direct from Developer

Building package ofThis magnificent property is waiting for you, offering an unmatched lifestyle in the embrace of nature, nestled within the serene grounds of Zambesi Manor Lifestyle Estate.

Three spacious bedrooms, two bathrooms with a guest toilet, two living areas with an island and access to the dining room and television, a stunning kitchen, and a scullery are among the features.

Dimensions of stand: 445 m² house: 270 m²

The Zambesi Manor Lifestyle Estate home is more than just a place to liveit''s a haven where dreams come true and memories are created, thanks to its tasteful fusion of beauty and functionality.

Property details

  • Listing number T5257540
  • Property type House
  • Listing date 7 Oct 2025
  • Land size 445 m²
  • Levies R 2 000

Property features

  • Bedrooms 3
  • Bathrooms 3
  • En-suite 1
  • Dining areas 1
  • Garage parking 2
  • Built in cupboards
  • Study
  • Walk in closet
  • Kitchen
  • Scullery
  • Family TV room
  • Guest toilet

Photo gallery