313 m² Land available in Worcester and surrounds

313 m²

Exclusive Sole Mandate

This corner plot is situated in the highly sought-after Altona Village Estate, Worcester, Western Cape.

Offering a prime location within the estate, the plot provides serene views of the surrounding natural landscape, making it an ideal spot to build your dream home. The estate is known for its secure living environment and modern amenities, combining the beauty of nature with the convenience of urban living.

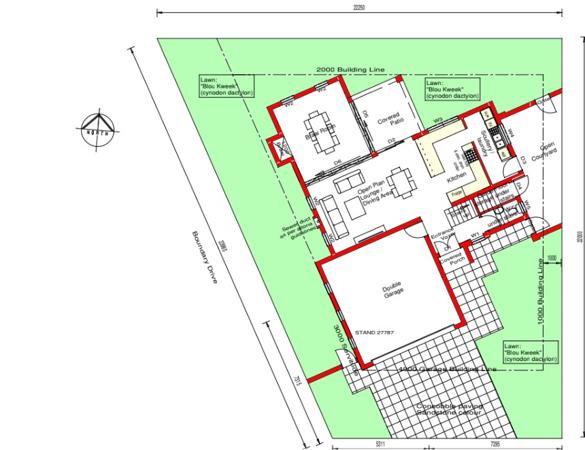
This plot comes with approved building plans for a spectacular double-storey home. The ground floor is designed for modern living, featuring an open-plan lounge, dining room, and kitchen with a separate scullery/laundry. It also includes a spacious braai room, a covered patio for outdoor entertainment, ample storage space, a welcoming porch, and a double garage.

The upper floor includes three spacious bedrooms, two bathrooms, and a dedicated study area, providing a perfect balance of comfort and functionality. Additionally, a balcony offers a peaceful outdoor space to relax and enjoy the surrounding views.

This is a fantastic opportunity to build your dream home in a prime location!

Property details

  • Listing number T4982953
  • Property type Residential Land
  • Listing date 28 Feb 2025
  • Land size 313 m²
  • Rates and taxes R 345
  • Levies R 1 100

Photo gallery