R 4 495 000
calculate bond costs

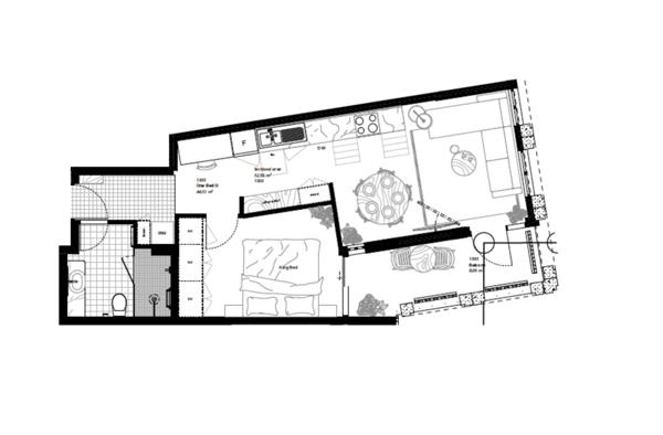
1 Bedroom Apartment in Cape Town City Centre

1 1 53 m²

One-bedroom Apartment at ELEVENONB

Our biggest and boldest development to date is here. Introducing our 21st development, ELEVENONB, located at 11 Buiten Street in the West City of Cape Towns Central Business District. Ready for completion in the third quarter of 2027.

ELEVENONB will introduce a new way of living in Cape Towns city centre. Designed to foster connection and to encourage a walkable, 15-minute city lifestyle. ELEVENONB is within walking distance of Kloof, Bree and Long Streets, offering sought-after eateries, bars, art galleries, museums and historical monuments. Not forgetting Loop Streets ever-growing list of niche offerings.

ELEVENONBs ground floor spaces will further enhance connectivity within the neighbourhood, allowing for a lived-experience that extends beyond your front door. A beautiful historic lane - Orphan Lane - and a heritage faade previously home to the iconic Madam Zingara will both be restored to their former glory.

This 16 floor building will consist of 151 thoughtfully designed apartments, including commercial office space and retail outlets. ELEVENONB offers blended building makeup of:

23 Compact Studio apartments.

50 Studio apartments.

17 Compact One-bedroom apartments.

24 One-bedroom apartments.

32 Two-bedroom apartments.

3 Three-bedroom apartments.

3 Penthouse apartments.

ELEVENONB lives in a neighbourhood open to possibilities. Open to connection. Open to the city.

*Please note that renders are for look & feel purposes and are subject to change.

Property details

  • Listing number T5301545
  • Property type Apartment
  • Listing date 12 Nov 2025
  • Floor size 53 m²
  • Rates and taxes R 2 323
  • Levies R 2 740

Property features

  • Bedrooms 1
  • Bathrooms 1
  • Pet friendly
  • Security post
  • Aircon

Photo gallery