R 2 980 000
calculate bond costs

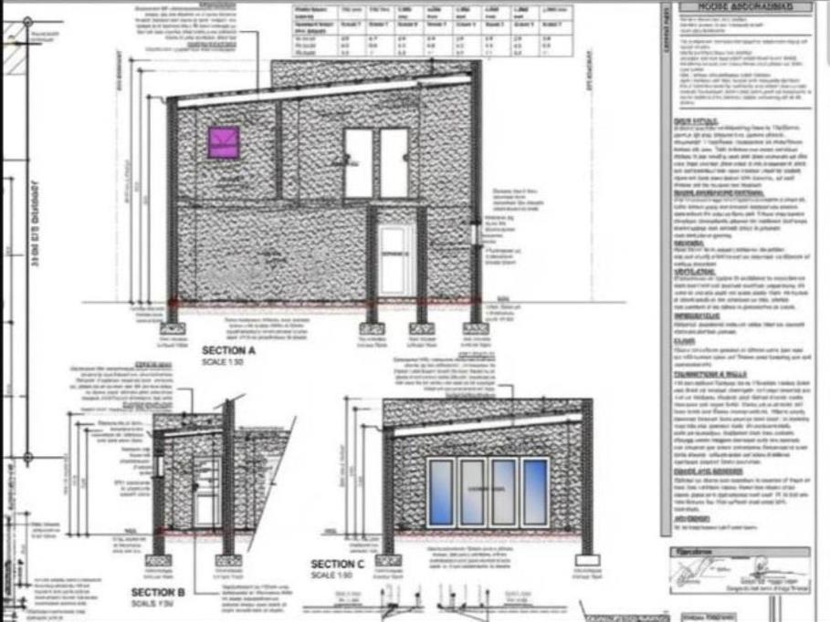
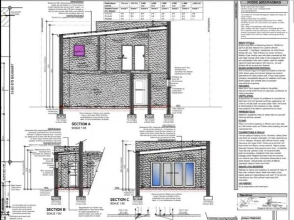
3 Bedroom House in Soneike

3 2 4 341 m² 169 m²

Build Your Dream Home with a Plot and Plan

Create the home youve always imagined with this thoughtfully designed 3-bedroom plan featuring 2 full bathrooms and a spacious open-plan kitchen that flows effortlessly into the living areas.

This layout offers the perfect balance of comfort, functionality, and modern living, giving you the freedom to personalize every detail to match your lifestyle.

Whether you envision contemporary elegance or warm family charm, the design allows you to shape each space into something uniquely yours.

With generous room sizes, smart flow, and endless potential, this is more than just a house plan, its the beginning of your dream home.

Finishes are unlimited, giving you the opportunity to express your style and create a space that truly feels like home from the ground up.

Property details

  • Listing number T5388553
  • Property type House
  • Listing date 13 Feb 2026
  • Land size 341 m²
  • Floor size 169 m²

Property features

  • Bedrooms 3
  • Bathrooms 2
  • En-suite 1
  • Lounges 1
  • Dining areas 1
  • Garage parking 2
  • Open parking 2
  • Storeys 2
  • Pet friendly
  • Built in cupboards
  • Entrance hall
  • Kitchen
  • Garden
  • Scullery
  • Paving
  • Guest toilet

Photo gallery