New
R 1 070 000
calculate bond costs

722 m² Land available in Groenvallei

722 m²

Build Your Dream Home: Prime Sedgefield Erf with Approved Plans

Discover an opportunity to build your dream home on this 722 sqm vacant erf in the suburban area of Groenvallei, Sedgefield. This generously sized plot comes with meticulously designed and approved architectural plans for a contemporary family home, offering a seamless path to realising your dream. Nestled against a backdrop of natural green hills and bordering a dense forest, the property promises scenic forest views, providing a tranquil and picturesque setting.

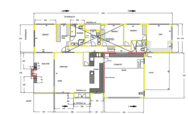
The proposed dwelling, detailed in the included plans, features a thoughtfully laid-out interior designed for comfort and modern living. It comprises three spacious bedrooms and three well-appointed bathrooms, with the master suite boasting an en-suite bathroom and a dedicated dressing room. A separate study provides an ideal space for remote work or hobbies, complementing the open-plan living and dining areas that ensure a harmonious flow.

Architectural drawings highlight a modern design with a 30-degree pitched roof, specified with durable Kliplok 700 sheeting, Radenshield and Aerolite insulation for energy efficiency. The plans include an integrated garage with a storage loft, a separate carport and an inviting outdoor ''Braai Stoep'' perfect for entertaining. Provisions for solar panels are also incorporated, aligning with sustainable living practices and adhering to an 8m height restriction.

Groenvallei offers a peaceful suburban lifestyle within the charming coastal town of Sedgefield. Known for its natural beauty, including lagoons, beaches, and forests, Sedgefield provides an idyllic environment for outdoor enthusiasts and families. Enjoy tranquility while remaining connected to local amenities.

Key Features:

Prime 722 sqm vacant erf in Groenvallei.

Approved architectural plans for a 3-bed, 3-bath home.

Dedicated study and outdoor Braai Stoep included in plans.

Integrated garage, separate carport, and attic storage.

Scenic forest views.

Established suburban neighbourhood with direct road access.

Pet-friendly environment.

Plans submitted to Knysna Municipality for approval.

Surveyors mapping completed

Soil tests completed

Stormwater assessment completed

Water connection completed and meter installed.

CIRCLE BROKERS CC trading as REMAX Coastal Sedgefield operates in terms of a franchise agreement with REMAX of Southern Africa.

Property details

  • Listing number T5321125
  • Property type Residential Land
  • Listing date 1 Dec 2025
  • Land size 722 m²
  • Rates and taxes R 1 600

Photo gallery