R 4 400 000
calculate bond costs

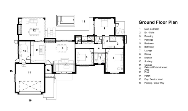
3 Bedroom House in Stilbaai Wes

3 2.5 2 751 m² 175 m²

Die Eiland - Plot [removed] Plan

3 Bedroom, 2.5 bathroom with double garage. Braai room. Gated complex surrounded by greenbelt, all plots facing north. Distant ocean views. No transfer duty.

Property details

  • Listing number T5219427
  • Property type House
  • Listing date 5 Sep 2025
  • Land size 751 m²
  • Floor size 175 m²

Property features

  • Bedrooms 3
  • Bathrooms 2.5
  • Lounges 1
  • Dining areas 1
  • Garage parking 2
  • Pet friendly

Photo gallery