R 3 850 000
calculate bond costs

3 Bedroom House in Sandy Point

3 2.5 2 515 m² 257 m²

Plot An Plan: Impeccable 3-Bedroom Modern-Day Home For Sale In Sandy Point Beach Estate

Unleash Coastal Luxury

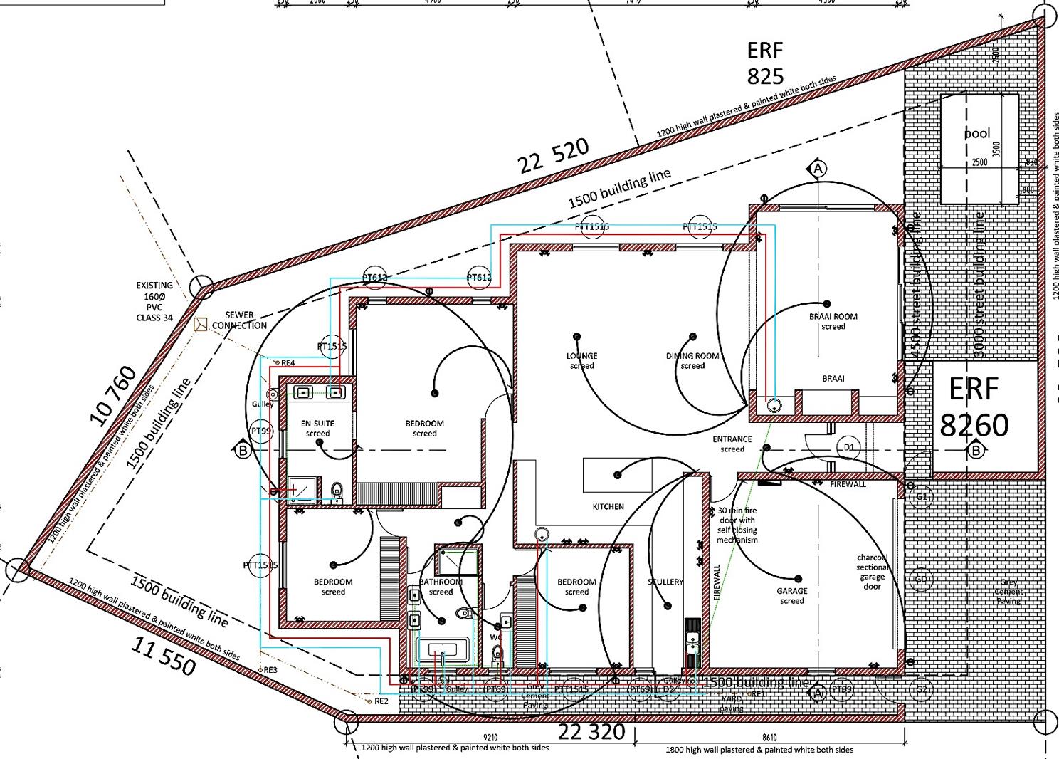
This brand-new soon to be constructed, 257m masterpiece nestled on a 515m stand in the prestigious Sandy Point Beach Estate is a testament to modern living at its finest.

Key Features:

Expansive Open-Plan Living: Seamlessly flowing living, dining, kitchen, and braai areas, perfect for entertaining and relaxation.

Gourmet Kitchen: A culinary haven with ample storage, gas stove, electric oven, and a spacious scullery.

Luxurious Bedrooms:

oMain Bedroom: En-suite bathroom, ample cupboard space, and laminated flooring.

oTwo Additional Bedrooms: Generous cupboard space and laminated flooring.

Elegant Bathrooms:

oGuest Bathroom: Stand-alone bath, walk-in shower, double vanities, and toilet.

oGuest Toilet: Conveniently located.

Outdoor Oasis:

oPrivate Braai Room: Enjoy breathtaking sea views and the salty ocean breeze.

oSparkling Swimming Pool: Perfect for cooling off on hot summer days.

oLow-Maintenance Garden: Paving and stone create a stylish and easy-care outdoor space.

Practical Amenities:

oAutomated Double Garage: Direct access to the home.

oSecure Living: Fully walled and situated in an access-controlled estate.

Additional Features:

-Gas Geyser: Embrace eco-friendly living with a gas geyser, reducing your carbon footprint and lowering energy costs.

-Prepaid Electricity: Experience efficient energy usage and seamless management of electricity expenses.

-Extra Paved Parking: Ample parking space complements the convenience of the double garage.

Please note: Images provided of the finishes are illustrative examples of the craftsmanship of the builder and not of the actual home.

Experience the Sandy Point Beach Estate Lifestyle

Imagine waking up to the sound of waves crashing against the shore, enjoying leisurely strolls along pristine beaches, and indulging in the vibrant coastal lifestyle. This stunning home offers the perfect blend of luxury, comfort, and security.

Don''t Miss This Opportunity

Contact us today to schedule a private viewing and discover the true potential of this exceptional property.

Live Your Dream Life!!

ABOUT US

We are a dynamic organisation dedicated to giving clients, property buyers, tenants, landlords and sellers a competitive advantage in the marketplace, we can help clients relocate to any town or city in South Africa, or around the world through our international affiliations. At the same time, with our unique property solutions marketing strategy, we can attract more prospective purchasers and tenants for our property sellers and landlords.

Our International Property Group is seen as one of South Africas premier estate agency groups, built on a 39-year-old foundation of solid family values and a desire not to just serve our clients well, but to become their lifelong property counsellors by delivering truly memorable service.

Our team of dedicated property professionals are local specialists armed with the widest array of marketing Solutions and trained to guide you through the maze of purchasing, selling or letting property from start to finish - and beyond.

OUR VALUE PROPOSITION

As a dynamic organisation we believe that in all we do, we are committed to excellence and therefore constantly challenge the status quo, to ensure we remain dedicated to giving our Team Members and clients the best service possible.

This, combined with our unique Solutions, will attract more prospective purchasers and tenants for our Sellers and Landlords to ensure they receive Clients the most competitive advantage in the marketplace, Unparalleled service, the highest possible value with the least inconvenience.

Property details

  • Listing number T4892369
  • Property type House
  • Listing date 4 Dec 2024
  • Land size 515 m²
  • Floor size 257 m²
  • Rates and taxes R 1 200
  • Levies R 700

Property features

  • Bedrooms 3
  • Bathrooms 2.5
  • En-suite 1
  • Lounges 1
  • Dining areas 1
  • Garage parking 2
  • Pet friendly
  • Access gate
  • Built in cupboards
  • Fenced
  • Pool
  • Security post
  • Kitchen
  • Scullery
  • Paving
  • Guest toilet
  • Built In braai

Photo gallery