R 27 544

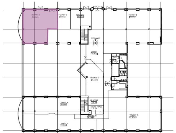
145 m² Retail Space in Dawncliffe

145 m²
Available Now

A GRADE RETAIL TO LET

Ground floor retail with glass frontage onto a busy road, located next to the well known Westville Mall. This unit includes own ablutions and a kitchenette. Close to all amenities and public transport.

3 yr lease includes Tenant Installation of R500/m2 and a 5 yr lease includes TI of R750/m2. Building has generator, back-up water and fibre connectivity. Suitable for Retail, Showrooms or offices.

Available immediately.

Property details

  • Listing number RR4553544
  • Property type Retail
  • Listing date 20 Nov 2025
  • Floor size 145 m²

Photo gallery