R 46 749

571 m² Industrial space in Paarden Eiland

Unit 7 + Y 28 Marine Drive, 28 Marine Drive
571 m²
Available Now

571 m2 Industrial Property To Rent in Paarden Eiland, Cape Town -

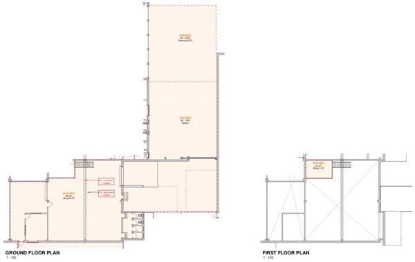
The 571 m2 GLA is made up of a ground floor unit 255m2, forecourt 78m2 and yard 237m2

571 m2 approximately R 81 per sqm R 46 749 net monthly rental excluding VAT

Situated on the R27 Marine Drive West Coast Road

MyCiti public transport system circulates the area

Close proximity to the Harbour and N1 highway

18km drive to Cape Town International Airport

Contact Eon directly - Call, Whatsapp, Telegram or Sms

Property details

  • Listing number RR4263049
  • Property type Industrial
  • Listing date 19 Nov 2024
  • Floor size 571 m²

Photo gallery

Video