R 4 200 000
calculate bond costs

266 m² Industrial space in Parklands

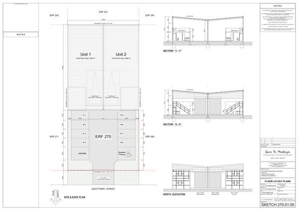
1 or 2 pegasus park, 13 sagittarri street,
4 266 m²

Brand New Industrial Warehouses for Sale in Rivergate. Only 2 Units Left in Prime Development

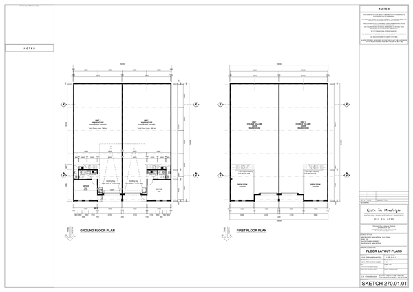
Step into your future business hub with these brand-new, premium sectional title factory units in the sought-after Titan Park 2 development, located within the secure Pegasus Park enclave in Rivergate. With only 2 units remaining, each measuring 266m2 and priced at R4,200,000 (ex. VAT), this is an ideal opportunity for owner-occupiers and investors seeking quality, functionality, and location.

Each unit offers a versatile and modern layout, including:

A double-volume warehouse (202m2) with power-floated flooring for heavy-duty operations

A sleek mezzanine level (32m2) ideal for storage or extended office use

A professional ground-floor office (22m2), fully tiled for a clean finish

A kitchenette and two bathrooms (10m2) for staff convenience

4 exclusive parking bays per unit plus visitor bays for clients and deliveries

Solar-ready infrastructure future-proof your energy efficiency

Situated at 13 Sagittarri Street, these units boast excellent access to major arterial routes and Cape Towns rapidly expanding northern industrial corridor.

Expected occupation: October 2026

Levies: To be confirmed

These modern industrial spaces are perfectly suited for light manufacturing, distribution, storage, or warehousing operations. Act fast only 2 units available in this sought-after second phase of Titan Park!

Property details

  • Listing number T5166443
  • Property type Industrial
  • Listing date 25 Jul 2025
  • Floor size 266 m²

Property features

  • Open parking 4

Photo gallery