R 4 200 000
calculate bond costs
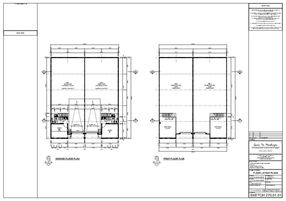
266 m² Industrial space in Parklands
266 m²
Warehouse with office For Sale in a secure complex.
Each unit comprises of the following:
Double volume Warehouse 202m
Mezzanine floor 30m
Ground floor office 22m
Kitchen and toilets 10m
Unit 2 Total building size: 266m
Power floated Warehouse floor.
Tiled office floor.
Ready for solar powered installation.
4 parking bays per unit plus visitors bays.
Levies to be confirmed.
Occupation date estimated December 2026.
Please feel free to contact me for a viewing
Property details
- Listing number T5308820
- Property type Industrial
- Listing date 18 Nov 2025
- Floor size 266 m²