R 8 400 000
calculate bond costs

532 m² Commercial space in Parklands

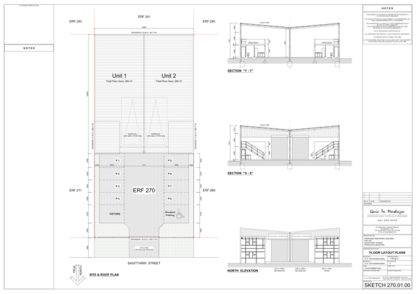
unit 1&2 pegasus park, 13 sagittarri street
8 532 m²

Two Brand-New Industrial Units for Sale in Rivergate. Combine for 532 squares of Premium Space

Unlock the full potential of your business with this exclusive opportunity to acquire two adjacent factory units in the brand-new Titan Park 2 development located in the secure Pegasus Park enclave of Rivergate.

These two mirrored units can be seamlessly combined to create a 532m2 industrial powerhouse, ideal for businesses needing greater operational flexibility, dual access points, or a division of production and distribution zones.

Combined Features Include:

404m2 double-volume warehouse space, perfect for racking, manufacturing, or logistics

64m2 mezzanine level, ideal for storage or executive workspace

44m2 of tiled ground-floor office space for client-facing operations or admin

2 kitchenettes and 4 bathrooms, ensuring comfort and convenience for staff

8 exclusive parking bays, plus additional visitor bays

Solar-ready infrastructure, giving you the option to go green and cut long-term energy costs

Dual roller shutter access, enabling efficient receiving and dispatch from both ends

Located at 13 Sagittarri Street, Rivergate, this combined configuration offers excellent exposure, direct access to key transport routes, and future-forward industrial design in one of Cape Towns fastest-growing commercial nodes.

Now selling for R8,400,000 (excl. VAT)

Expected Occupation: October 2026

Levies: To be confirmed

3D renderings available showcasing the clean architectural lines, modern finishes, and premium layout that make these units stand out in the market.

Whether you''re expanding, consolidating, or investing, this dual-unit opportunity offers unmatched value, flexibility, and long-term upside.

Contact us today for more information or to arrange a private viewing. These are the last two units available secure your space before they''re gone.

Property details

  • Listing number T5166465
  • Property type Commercial
  • Listing date 25 Jul 2025
  • Floor size 532 m²

Property features

  • Open parking 8

Photo gallery