19 680 m² Commercial space in Laaiplek
Prime Commercial Property with Development Potential in Laaiplek
Prime Commercial Property with Development Potential in Laaiplek
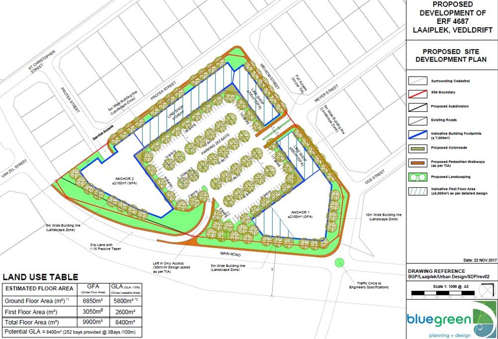
An exceptional investment opportunity awaits at the intersection of Main Road and Oos Street in Laaiplek. This expansive 19,764 square meter property offers significant development potential and is ideal for commercial enterprises.
Key Features:
Strategic Location: Situated at a prime intersection, ensuring high visibility and accessibility for any future development.
Commercial Development Rights: The property comes with approved commercial development rights, allowing for a variety of commercial projects.
Comprehensive Documentation: The sale includes essential documents such as the Locality Plan, Erf Diagram, Rezoning Approval, Approved Site Development
Plan, and Provincial Roads Authority Approval.
This property is an excellent opportunity for investors and developers looking to capitalize on Laaiplek''s growing commercial landscape. We invite interested buyers to contact us directly to discuss offers and potential negotiations. Don''t miss out on this prime development opportunity.
Property details
- Listing number T4985600
- Property type Commercial
- Listing date 3 Mar 2025
- Land size 2 ha
- Floor size 19 680 m²