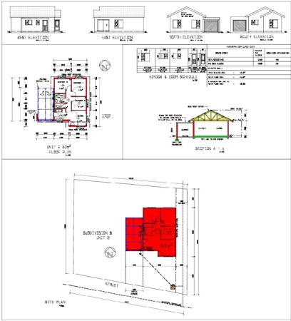
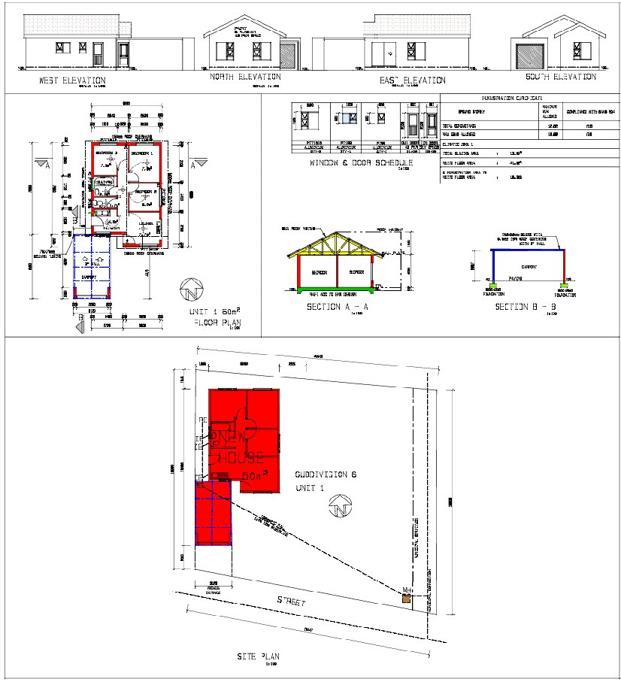
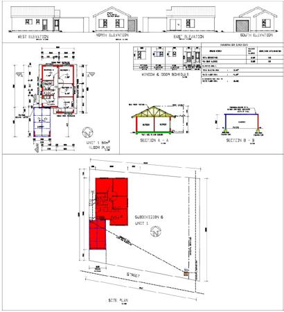
350 m² Land available in Heidedal

350 m²

Develop a Home with Rental Options

This spacious 350m vacant stand offers the perfect opportunity to build a family home with a built-in rental unit or flatlet. Approved plans are included, so you can start building and earning sooner.

Property details

  • Listing number T5212707
  • Property type Residential Land
  • Listing date 1 Sep 2025
  • Land size 350 m²

Photo gallery