R 1 200 000
calculate bond costs

3 315 m² Land available in Komatipoort

3 315 m²

KOMATIPOORT - 3 310m[removed] RESIDENTIAL STAND

PRIME INVESTMENT OPPORTUNITY 3 310m2 RESIDENTIAL 3 STAND WITH SUBMITTED BUILDING PLANS | KOMATIPOORT

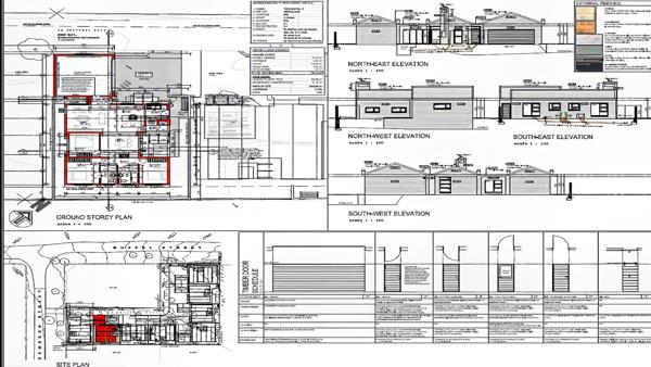
This exceptional 3 310m2, Residential 3zoned stand in Komatipoort presents an outstanding opportunity for developers or investors looking to secure long-term rental income and expand their property portfolio. Perfectly located within the Nkomazi Municipality, this stand includes modern architectural building plans already submitted for municipal approval, saving you significant time, money, and planning effort.

The proposed development features 8 contemporary residential units, designed for maximum rental appeal with smart layouts and modern aesthetics. With strong rental demand in the area, this is a turnkey investment ready for your vision.

PROPERTY FEATURES

Stand Size: 3 310m2

Zoning: Residential 3

Land Use: Dwelling Units

Development: 8 modern rental units (plans submitted for approval)

Perfect For: Long-term rental income, multi-unit development, or sectional title investment

WHY THIS PROPERTY IS A WINNING INVESTMENT

* Professionally designed building plans already submitted for approval

* Situated in a strong, high-demand rental market

* Zoning and density allow for an efficient multi-unit development

* Excellent long-term rental income and capital growth potential

* Significant savings on planning, architecture, and submission time

* A perfect opportunity for developers seeking a ready-to-build project

Registered with the PPRA under PaySys Consult Pty Ltd t/a Century 21 Nelspruit (Kruger South), a registered business property practitioner that operates a trust account.

Property details

  • Listing number T5313624
  • Property type Residential Land
  • Listing date 21 Nov 2025
  • Land size 3 315 m²
  • Levies R 160

Photo gallery