R 1 990 000
calculate bond costs

1 900 m² Land available in Schoemansville

1 900 m²

DEVELOPMENT OPPORTUNITY

CALLING ALL DEVELOPERS

This is a rare opportunity to shape the landscape of one of South Africa''s most alluring destinations. Don''t miss your chance to be a part of the Schoemansville Hartbeespoort''s vibrant future.

Seize the opportunity to bring your development dreams to life in the heart of Schoemansville, Hartbeespoort, with this prime land offering. Meticulously designed and fully approved, this development project presents a turnkey solution for investors and developers seeking a standout addition to their portfolio. With every detail considered and all approvals in place, this property is a canvas of possibilities awaiting your vision.

Location: Nestled in the serene and sought-after Schoemansville neighbourhood, this property offers both tranquillity and convenience. Embrace the beauty of the surrounding landscape while being within easy reach of local amenities, schools, and recreational facilities.

Approved Development: Streamline your journey to success with fully approved plans for stunning development. All the groundwork has been meticulously laid out, ensuring a seamless transition from blueprint to reality.

Benefit from the ease of service agreements that have been secured. Water, electricity, sewage, and road access are all readily available, minimizing any potential hurdles. Be the proud owner of this development company in 2 ticks as the shares can be transferred to your name without going through a deeds transfer process.

This development boasts excellent modern industrial designs that blend seamlessly with the natural beauty of the area. The architecture reflects a harmonious fusion of contemporary aesthetics and functional excellence.

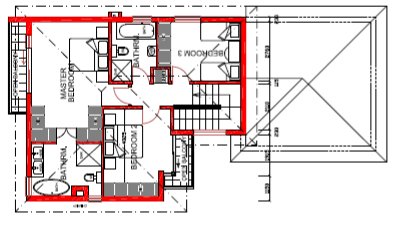
Discover a layout that has been meticulously planned to optimize space and functionality. Each of the 5 double-story townhouses has been designed with care, offering 3 spacious bedrooms and 2 convenient garages.

With a focus on high-quality design, convenient location, and optimal layouts, this development is an ideal addition to your personal rental portfolio: secure long-term returns and tenant satisfaction with these thoughtfully designed units.

This prime development in Schoemansville, Hartbeespoort, offers a unique chance to enhance your rental portfolio with a product that''s primed for success. Benefit from the meticulous planning, approvals, and exceptional designs that set the stage for a hassle-free investment journey.

For serious investors who recognize the value of a well-executed development, this opportunity is not to be missed. Please contact us to inquire about detailed plans, schedule a site visit, or discuss investment possibilities. Secure your foothold in the thriving Schoemansville market and elevate your investment aspirations.

Property details

  • Listing number T4289424
  • Property type Residential Land
  • Listing date 17 Mar 2025
  • Land size 1 900 m²
  • Rates and taxes R 1 200

Photo gallery