R 2 259 000
calculate bond costs

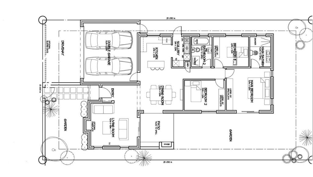
3 Bedroom House in Britannia Bay

3 2 4 363 m² 158 m²

Secure Your Plot Today! [removed] Proposed Plot [removed] Plan [removed] Britannia Bay - Coastal Living at Its Best

R2 259 000 I 158 sqm I Plot Included

Build your dream home in the heart of Britannia Bay, St Helena Bay, where white sandy beaches, calm blue waters, and a relaxed coastal lifestyle come together beautifully. Positioned just a short stroll from the renowned Golden Mile beach, this property offers the perfect balance of seaside tranquillity, everyday convenience, and secure modern living. Whether youre planning a permanent residence, a holiday escape, or an investment property, this location promises exceptional long-term value.

This Plot & Plan forms part of our premium Building Package D, crafted to deliver quality, modern finishes, and contemporary architectural design in one of the West Coasts most sought-after areas. The package includes the plot and allows you to enjoy a thoughtfully designed 3-bedroom home with spacious open-plan living, ideal for families and entertainers alike. A stylish kitchen with a walk-in pantry and separate scullery keeps the home practical and organised, while sliding doors open onto a patio with built-in braaiperfect for summer gatherings and relaxed weekends. The double garage offers secure parking and additional storage, while options for covered patio and stacker doors allow you to customise your lifestyle.

Situated approximately 150 km from Cape Town and an easy 1.52 hour scenic drive along the R27, St Helena Bay has become a favourite for those seeking coastal peace, retirement living, or profitable investment opportunities backed by steady tourism and growth in the area. With the beach just moments away, every day feels like a holiday.

Contact us today to secure this exceptional package and start your West Coast building journey.

Your coastal lifestyle awaits.

Act Now! Secure your space in Britannia Bay and start creating your coastal paradise today. Contact us to make it happen!

* Disclaimer

The property description is provided for general informational purposes only and does not constitute any form of warranty or representation regarding the property. The listing agent or seller shall not be held liable for any errors, omissions, or discrepancies in the description. Furniture and décor shown in the images are for staging purposes only and are not included in the sale. Images and/or renderings are for marketing purposes only and may include examples from previous builds by the developer.

Property details

  • Listing number T5250828
  • Property type House
  • Listing date 1 Oct 2025
  • Land size 363 m²
  • Floor size 158 m²
  • Rates and taxes R 1 250
  • Levies R 50

Property features

  • Bedrooms 3
  • Bathrooms 2
  • En-suite 2
  • Dining areas 1
  • Garage parking 2
  • Open parking 2
  • Storeys 1
  • Pet friendly
  • Built in cupboards
  • Kitchen
  • Scullery

Photo gallery